
The documentation of Saint George’s Episcopal Church was undertaken by the Historic American Buildings Survey (HABS) of the Heritage Documentation Program (HDP) division of the National Park Service (NPS), Richard O’Connor, Chief. The project was sponsored by the Alaska Regional Office (ARO), NPS, Jennifer Pederson Weinberg, Cultural Resources Program Manager. Project planning was coordinated by Catherine Lavoie, Chief, HABS, and by Grant Crosby, AIA, Regional Historical Architect, ARO. The field work was undertaken and the measured drawings were produced by Project Supervisor Mark Schara, AIA, HABS Architect, and by HDP Architects Jeremy Mauro and John Wachtel. Assistance was provided by the Rev. Belle Mickelson, Rector, Saint George’s Episcopal Church, and by Nancy Bird, Cordova Museum Assitant.





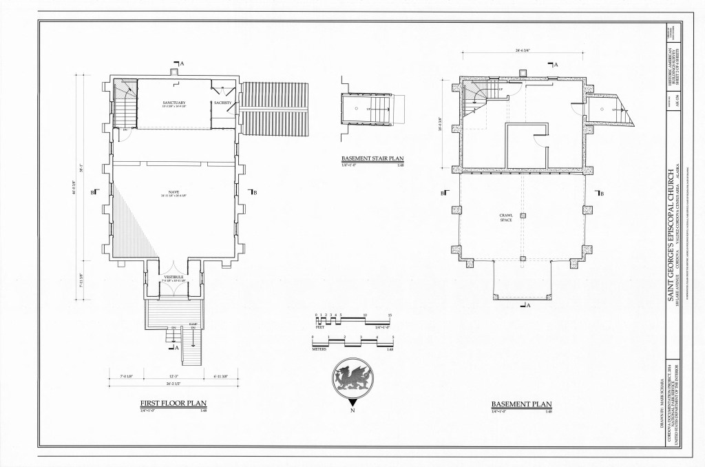
The design of Saint George’s Episcopal Church is attributed to the Rev. Eustace P. Ziegler, who had trained as an artist in Detroit before relocating to Cordova in 1909. The church was consecrated on Easter Sunday, 20 April 1919, and dedicated to the memory of Erastus Hawkins, Chief Engineer of the Copper River & Northwestern Railway. The construction of Saint George’s was funded in part by a large contribution from the Kennecott Copper Corporation. The church was built of wood frame construction on a concrete foundation, and sided with wood shingles on the exterior. The interior was sheathed with plywood panels and wood battens, stained dark brown.
Never a large congregation, Cordova was designated a mission outpost by the Episcopal Church, with Saint George’s often sharing a priest with Epiphany Church in Valdez. During several periods over the course of the twentieth century, the parish lacked a resident priest, with lay members leading services between the occasional visits of priests from other parishes. Nevertheless, Saint George’s has continued to play a vital role in Cordova, providing social services and serving an in important community gathering place. In 1982, Saint George’s was placed on the National Register of Historic Places as part of the Red Dragon Historic District.